
Construire sur les toits,
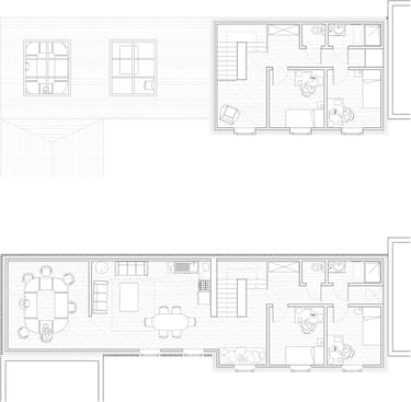
Projet de surélévation sur un immeuble d'habitations du Vieux Versailles, dans un contexte imaginaire d'interdiction de nouvelles constructions au sol.
À propos
« Dans un avenir proche une crise du logement frappe le territoire francilien et les jeunes ménages peinent de plus en plus à trouver des surfaces adaptées à leurs besoins. Les lois drastiques votées depuis peu empêchent tout étalement urbain en zone périphérique, notamment à cause de la récente crise de l’énergie qui vient d’arrêter de facto tous les programmes de construction en cours non connectés par voie piétonne ou par le réseau ferré Ile-de-France. La ville de Versailles, dans ce contexte, est en porte-à-faux.
Les espaces urbains libres récemment colonisés par les associations locales, ont été transformés en jardin potagers et classés inconstructibles. Il n’y a donc plus de terrains ni de friches vacants pour la construction d’habitats neufs. Face au vieillissement de la population et à l’explosion démographique de sa commune, la mairie de Versailles réagit en modifiant son plan local d’urbanisme, et permet ainsi la création sur chaque immeuble d’un LEG ou « Logement en Greffe » qui vient se greffer sur le toit d’un immeuble existant.»
Galerie photos










Galerie de plans






Tel I Whats'App : 07.60.35.91.29
EURL au capital de 5.000€ I SIRET 942495565 I MAF 179068/B
Ordre des Architectes : S25573